Apenas pré-visualização - ver todas as fotografias do hotel
Ver todas as fotos de 34
Mostrar hotel no mapa
Bonaire
O Bonaire Apartamento Sitges está localizado a apenas 550 metros de Museu Cau Ferrat e a 25 minutos a pé de Clube de Golfe Terramar.
Este apartamento está situado no bairro Centro de Sitges de Sitges a alguns minutos da Iglesia de San Bartolomé y Santa Tecla. O apartamento também está situado próximo de Museu Romântico Can Llopis. O Bonaire Apartamento fica a aproximadamente 7 km de Plaça de la Vila.
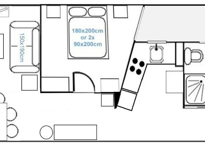
Ao ficar noo apartamento, os hóspedes têm acesso para varanda e local de descanso equipados com controle de temperatura. Para garantir o seu conforto, casa de banho separada e chuveiro podem ser encontrados neste apartamento. Secador de cabelo, lençóis de banho e toalhas também podem ser encontrados.
Para aqueles que querem cozinhar as suas próprias refeições, o Bonaire Apartamento fornece opções auto-suficientes, tais como chaleira elétrica, refrigerador e utensílios de cozinha. A paragem Passeig Vilafranca - Sant Francesc pode ser encontrado muito perto deste alojamento.
Comodidades
Principais características
Instalações
- Chaleira
- Utensílios de Cozinha
- Área de refeições exterior
- Área de estar
- Facilidades de chá e café
- Mesa de jantar
- Máquina de Lavar Roupa
- Produtos de Higiene Pessoal gratuitos
- TV LCD
Política
Mapa
Atrações locais
Atrações
- Museo Romantic Can Llopis (100 m)
Aeroportos
- Aeroporto em Barcelona (28 km)
Estações de comboios
- Sitges Train Station (400 m)