Bonaire
갤러리
미리보기만으로 모든 호텔 사진 보기
34장의 사진 모두 보기 1 /
34
여행 날짜에 가장 적합한 옵션
지도에서 호텔 보기
Bonaire
Bonaire 아파트는 시체스에 위치해 있으며 레스토랑, 레스토랑, 라이브 엔터테인먼트를 갖추고 있습니다. 0.5km 이내에 Platja de Sant Sebastià 있고 0.7km 이내에 라 리베라 해변 있습니다.
이 숙소는 칸 요피스 로만티시즘 박물관 바로 옆의 Sitges Town-Centre 지역에 위치하고 있습니다. 시내 중심부는 1km 내에 떨어져 있습니다. 손님께서는 50미터 거리에 있는 피자집 Telepizza에서 이탈리아 식사를 드실 수 있습니다.
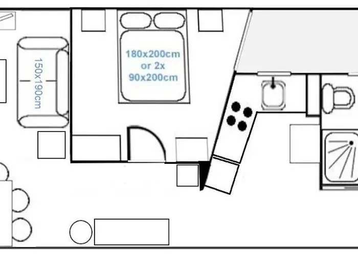
이 아파트는 부엌과 TV, 발코니, 전기 커피메이커가 마련된 객실을 갖추고 있습니다. 아파트는 1개 침실을 제공합니다. 투숙객은 개별 변기, 샤워 함께 제공되는 1개 욕실을 이용할 수 있습니다.
주방 편의 시설에는 오븐, 세탁기, 주방용품이 제공됩니다. 이 아파트는 철도역 기차역에서 도보로 10분 이내의 거리에 있습니다. 등산, 승마, 카누를 지역에서 즐길 수 있습니다.
더 보기 +
더 적게 -
잠시만 기다려주십시오. 이용 가능한 객실을 확인중입니다.
호텔 찾는 중
편의 시설
주요 시설
시설
식사:
- 주전자
- 주방 식기
- 야외 식사 공간
객실 어메니티:
- 휴식 공간
- 차와 커피 시설
- 식탁
- 세탁기
- 욕실 용품
- LCD TV
정책
체크인: 16:00부터 23:59까지
체크아웃: 12:00까지
허가 번호ESFCTU000008107000491387000000000000000000HUTB-139193,HUTB-13919
지도
지역 명소
명소
- Museo Romantic Can Llopis (100 m)
공항
- 바르셀로나 엘프라트 공항 (28 km)
기차역
- Sitges Train Station (400 m)